Projet: LA STATION D'EPURATION MAERA
Vị trí: Nằm ở giao lộ của Đại lộ Schloesing và Đại lộ Huveaune ở Marseille. Tháng 5 năm 2022 đến Nay/Thực hiện các bản vẽ cốt thép
Project: THE LINK
Vị trí: La Défense, France / 2023-2024 / Triển khai bản vẽ cốt thép phần hầm và 5 tgần khối đế + một số tầng điển hình
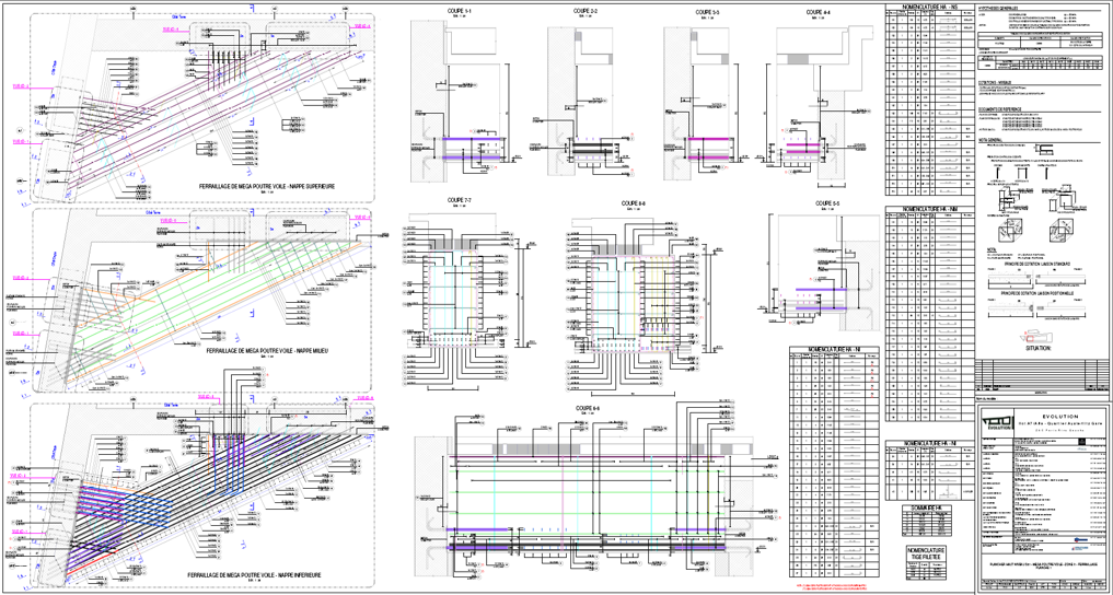
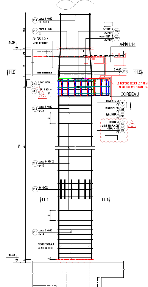
ILOT A7/A8a QUARTIER AUSTERLITZ GARE
VỊ trí: Sud-Est de Paris 13e arrondissement Gare d'Austerlitz/ Triển khai bản vẽ cốt thép
EXTENSIONS NORD ET SUD DU TRAMWAY DE MARSEILLE - CREATION D'UN SMR-SDR
Projet: SARTORIUS
Vị trí: Aubagne, Bouches-du-Rhône, France/ Tham gia một phần thực hiện bản vẽ cốt thép
Project: DIA
Một dự án cải tạo, xây mới hầm gửi xe bên dưới công viên Diament tại Pháp ( từ 1 hầm lên 3 hầm)

Một số hình ảnh/ sản phẩm dự án
(Vì lí do bảo mật nên mình xin phép không trình bày chi tiết)

(+84)32 518 4949

Email: Tunganh30198@gmail.com